Обяви За нас Контакти
Продава КЪЩА
град Пловдив, Център
околовръстен път
29 900 €
58 479.32 лв.

(475 €, 929.02 лв./m2)
Цената е без ДДС
История на цената
Публикувана в 10:15 на 11 ноември, 2025 год.
Обявата е посетена 34 пъти.
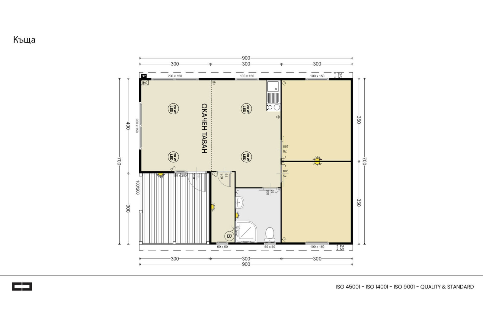
Площ:
63 m2
Двор:
1 m2
Етаж:
1
Газ:
НЕ
ТEЦ:
ДА
Строителство:
Панел, Въведен в експлоатация

Описание на имота:


Предлагам модулни, преместваеми къщи.
Предимства:
- Монтират се за 1 ден
- Доставят се напълно готови за употреба
- Къщата може да се премести и продаде
- Поддържа висока цена
- Сертифицирани по ИСО
- Има дълъг живот
- Галвализирана стоманена конструкция
- Възможност за индивидуален дизайн

------------------------------------------------------------------------------------------------------------------------

Гладно поле (квартал)Гроздов пазар Захарна фабрика (Пловдив) Изгрев (Пловдив) Каменица (квартал на Пловдив)
Капана Католишка махала (Пловдив) КоматевоЛаута Мараша
Остромила Прослав Скобелева майка (квартал)
Смирненски (Пловдив) Столипиново Съдийски квартал Хаджи Хасан махала Хан Крум (квартал) Харман махала
Шекер махала Квартал Христо Ботев север; Квартал Христо Ботев юг; Квартал Македония ; Квартал Коматево ;
Квартал ЖК Южен ; Квартал Модър етап ; Квартал Христо Смирненски -юг /кв. Модър етап ;
Квартал Въстанически север; Квартал Въстанически юг;
Южна индустриална зона и част; част; V част и V част;
Кв. Остромила- Беломорски ; Землище Пловдив-юг Земи с променен статут
Капана Гроздов пазар Мараша Адата Хаджи Хасан махала Съдийски квартал Католишки квартал Военна болница
Люляците Панайот Волов Тодор Каблешков Кан Крум Търговски Опълченски Капитан Бураго Оборище Хан Аспарух
Възраждане Захари Зограф Лаута Скобелева майка Герджика Гагарин Гаганица Филипово Захарна фабрика Тодор Каблешков Шекер махала Харман махала
Марица Гардънс Разкопаница Столипиново
Изгрев Гладно поле Каменица, Каменица Дружба
Чайка Асеновградско шос Беломорски
Въстанически Гагарин Гладно поле
ЗападенЗахарна фабрика Изгрев Индустриална зона - Изток
Индустриална зона - Марица
Индустриална зона - Север
Индустриална зона - Юг
Каменица 1
Каменица 2
Капана - -
Карловско шосе
Коматево
Коматевски възел
Коматевско шосе
Кършияка
Кючук Париж
Мараша
Младежки Хълм
Остромила
Отдих и култура
Пещерско шосе
Прослав
Старият град
Столипиново
Сточна гара
Съдийски
Тракия
Филипово
Христо Смирненски
Централна гара
Център
Южен
Виж всички обяви в balkankonteineri.bazar.bg или тук
Особености
Панел
За контакт:
0895531053

Този имот се предлага само на частни лица
Строителна фирма:
БАЛКАН КОНТЕЙНЕР
0896444555
В imot.bg от 2025 г.
balkankonteineri.imot.bg
Адрес:
област София, гр. София, Контейнер ООД, гр. София, бул. Илиянци 12
http://www.vitalbox.bg
ИЗПРАТИ ЗАПИТВАНЕ
ИЗПРАТИ ЗАПИТВАНЕТО

Продава КЪЩА
град Пловдив, Център
околовръстен път
Обява: 1j176284891045845

29 900 €
58 479.32 лв.
История на цената
(475 €, 929.02 лв./m2)

Цената е без ДДС
ЗАПАЗИ ОБЯВАТА

Местоположение: град Пловдив, Център, околовръстен път